Zur Navigation wechseln Zum Inhalt wechseln Zum Footer wechseln

Resthof mit 5 WE

ImmoNr
97
Objektart
Haus
Objekttyp
Resthof
Vermarktungsart
Kauf
Ort
Bockenem / Ortshausen
Land
Deutschland
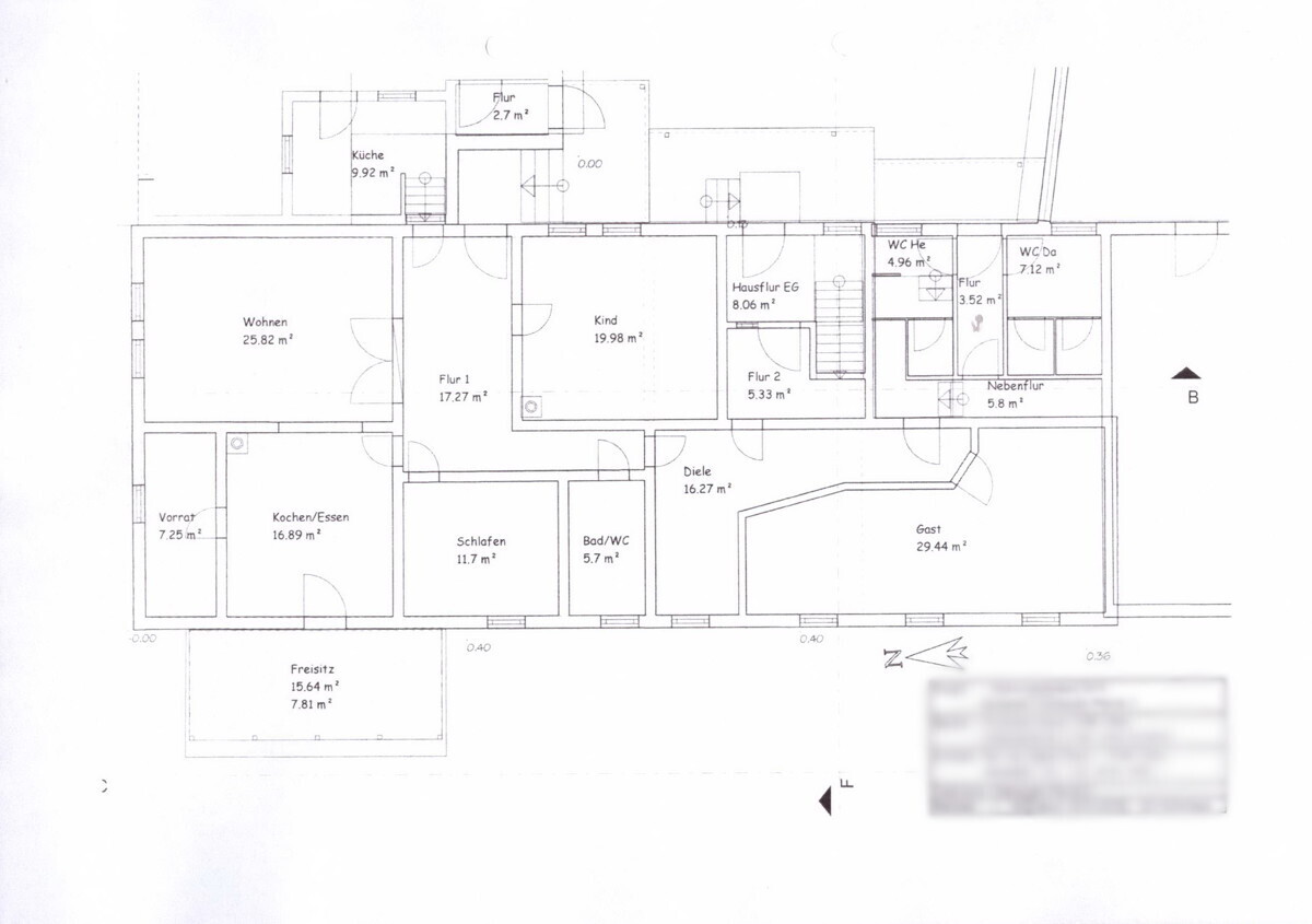
Wohnfläche
ca. 480 m²
Nutzfläche
ca. 250 m²
Grundstücksgröße
ca. 2.699 m²
Anzahl Zimmer
12
Anzahl Schlafzimmer
7
Anzahl Badezimmer
5
Anzahl Balkone
2
Anzahl Terrassen
2
Balkon
Ja
Befeuerung
Öl
Etagenzahl
3
Terrasse
Ja
Kaufpreis
272.000,00 €
Außen-Provision
3,57% inkl. gesetzl. MwSt.

Zur Immobilie

Bilder sagen mehr als 1000 Worte! Wir haben das Objekt, Sie die Ideen zur Nutzung. Diese im Jahr 1860 erbaute Hofstelle wurde in den 90er Jahren komplett renoviert, das Dach gedämmt und ausgebaut, die Elektrik komplett erneuert, die Öl Zentralheizung neu eingebaut (Gasanschluss liegt im Haus) und vor 3 Jahren der Brenner erneuert. Am Haus liegt Glasfaser Anschluss.
Hier wurden auch Pferde gehalten. Im Haus gibt es 5 Wohneinheiten in unterschiedlicher Größe, plus ein ehemaliges Hof Café. Der Fachwerk Charme ist erhalten geblieben. Ein EA ist beantragt und liegt bei Besichtigung vor.

Vereinbaren Sie einen Termin zur Besichtigung oder rufen Sie mich zur Beantwortung weiterer Fragen an.

Nutzungsart
Wohnen

Der Resthof befindet sich in dem idyllischen Ort Ortshausen, einem Ortsteil von Bockenem. Die Stadt Bockenem zählt rund 10.000 Einwohner. Sie
liegt verkehrsgünstig an der Autobahn A 7 Hannover –
Kassel, mit nahem Anschluss an die Bundesautobahn A39 Richtung Braunschweig / Wolfsburg/ Berlin. Die Nachbarstädte
Hildesheim, Seesen, Salzgitter und Goslar sind in kurzer
Zeit zu erreichen. Bis zum Harz sind es nur 30 Autominuten. Insgesamt ist das Stadtgebiet, geprägt durch viele Fachwerkhäuser, das identisch mit dem historischen Ambergau ist, von einer sehenswerten, bewaldeten Landschaft mit zahlreichen Sehenswürdigkeiten und Ausflugsmöglichkeiten

Dieses Angebot ist freibleibend und unverbindlich. Die
Objektdaten stammen vom Anbieter. Eine Gewähr für
die Richtigkeit und Vollständigkeit können wir nicht
übernehmen. Das Angebot ist nur für Sie bestimmt und
darf nicht an Dritte weitergegeben werden.
Grundsätzlich ist die Kontaktaufnahme zwischen Käufer
und Verkäufer bzw. zwischen Mieter und Vermieter über
uns einzuleiten. Eine Besichtigung darf nur im
Einvernehmen mit uns vorgenommen werden. Bei
Weitergabe haftet der Empfänger für die volle Provision
(Verkäufer- und Käuferprovision bzw. Vermieter- und
Mieterprovision). Der Empfänger ist verpflichtet sofort
Mitteilung zu machen, wenn ihm das Objekt von
anderer Seite
angeboten wurde. Geschieht dieses nicht, so erkennt
der Empfänger unseren Nachweis an.

Ihr Ansprechpartner

Robert Bathel

Herr Robert Bathel

Kiehne Immobilien

Tel.:
05181 827327
E-Mail:
info@kiehne-immobilien.de

Paulistraße 10
31061 Alfeld

Weitere Immobilien

Bockenem / Königsdahlum

Viel Raum zur Gestaltung

ImmoNr
115
Objektart
Haus
Objekttyp
Zweifamilienhaus
Vermarktungsart
Kauf
Anzahl Zimmer
12
Grundstücksgröße
ca. 600 m²
Wohnfläche
ca. 250 m²

Sehlde

Garten Nein-Haus Ja

ImmoNr
117
Objektart
Haus
Objekttyp
Einfamilienhaus
Vermarktungsart
Kauf
Anzahl Zimmer
4
Anzahl Schlafzimmer
3
Grundstücksgröße
ca. 240 m²
Wohnfläche
ca. 120 m²

Bockenem / Königsdahlum

DHH mit Garage in Dorfrandlage wartet auf neuen Leben

ImmoNr
118
Objektart
Haus
Objekttyp
Doppelhaushälfte
Vermarktungsart
Kauf
Anzahl Zimmer
10
Anzahl Schlafzimmer
8
Grundstücksgröße
ca. 505 m²
Wohnfläche
ca. 120 m²

    Ihre Anfrage zu der Immobilie „Resthof mit 5 WE“ (97)

    * Pflichtfelder